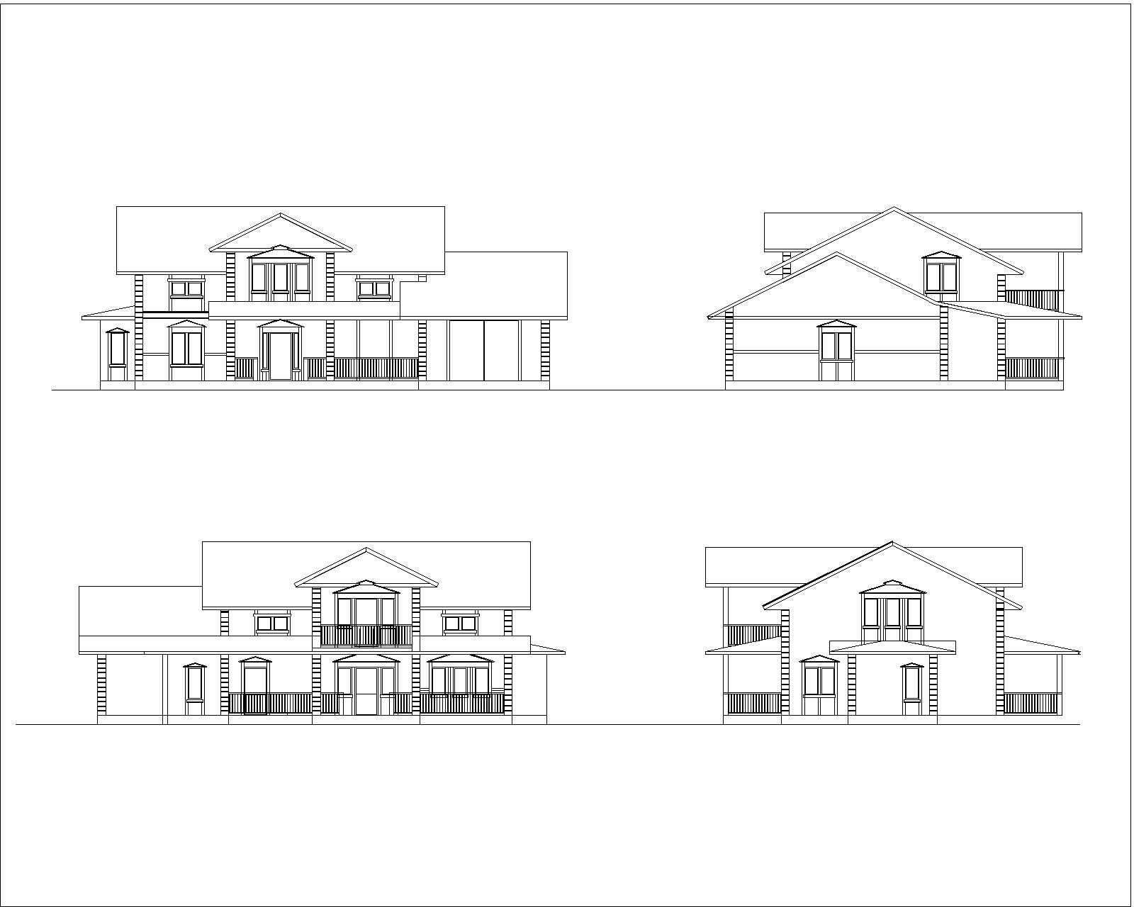
 Julkisivu luonnos
Julkisivu luonnos
Rakennussuunnittelu
Rakennussuunnittelu eli rakennuksen tilojen ja ulkonäön suunnittelu tapahtuu asiakkaan toiveiden pohjalta ottaen huomioon tulevan rakennuspaikan ja virallisten rakentamista koskevien ohjeiden asettamat vaatimukset.
Suunnittelu voi rajoittua myös pelkkien luonnosten tekemiseen. Luonnosten pohjalta voi pyytää tarjouksia talotehtailta, jolloin tarjoukset ovat keskenään paremmin vertailukelpoisia.
Rakennesuunnittelu
Rakennesuunnittelussa selvitetään kohteeseen sopivat vaihtoehtoiset rakennustavat ja tekniset ratkaisut, jonka jälkeen valitaan yhdessä asiakkaan kanssa käyttökelpoisimmat ottaen huomioon aiheutuvat kustannukset.
Pääsuunnittelija
Pääsuunnittelija vastaa rakennuksen kaikkien osa-alueiden (LVIS, ym) suunnittelun yhteensovittamisesta ja toteutuskelpoisuudesta.
Toteutan asiakkaan tarvitsemat suunnitelmat ja lupakuvat nykyaikaisilla ohjelmilla.
